Skip to main content

Chalet Feuilli

Verbier (self-catered)

Sleeps 6

Prices from CHF 15,500 per week

Book Your Stay

A cozy living room with wooden beams, a stone fireplace with a fire burning, shelves with books and decor, a large wall-mounted TV, a bouquet of flowers on the coffee table, and comfortable seating. David Pearson Travel

Stay at Chalet Feuillu in Verbier

Accommodating up to six guests across three serene double en suite bedrooms, Chalet Feuillu is the perfect alpine retreat suited for families or close friends seeking an elevated experience with sweeping mountain views and an outdoor hot tub.

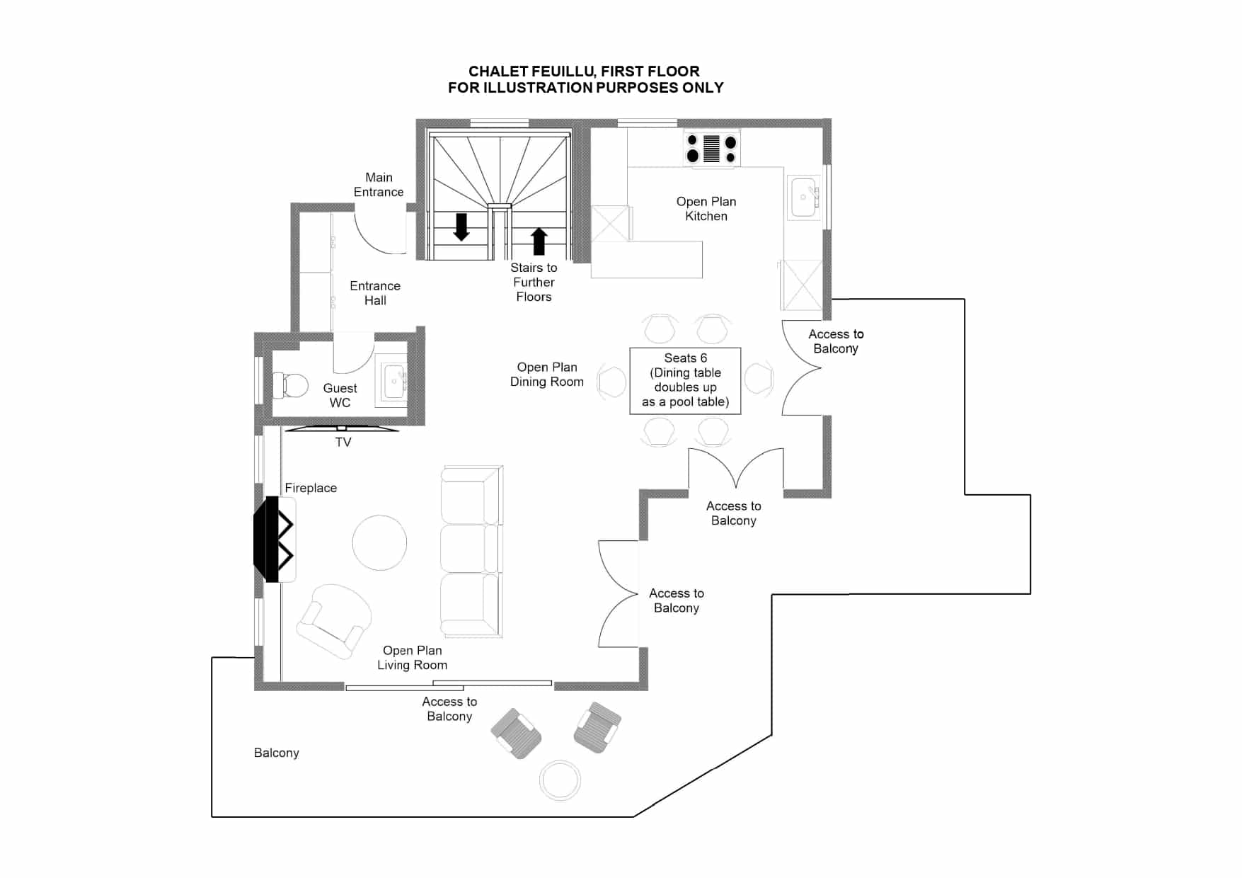
The open-plan living area sets the tone for your stay; filled with light, framed by floor-to-ceiling windows and a striking stone fireplace takes centre stage. The space flows effortlessly onto a south-facing balcony, where a private hot tub overlooks the alpine scenery.

Step into the modern kitchen to prepare intimate family meals or explore the array of restaurants Verbier has to offer. As night falls, the dining table transforms into a full-sized pool table to ensure the evenings are as engaging as they are elegant. The experience continues downstairs, where a bespoke glass football table invites sophisticated competition.

All three bedrooms, two double and one twin/double, are located on the top floor of the chalet, each with access to a balcony. The master bedroom features a private terrace and en suite with a stone bath to unwind after a day on the slopes.

On the ground floor, you will find the wine cave along the private ski room with boot warmers, adding ease to your morning routine. Chalet Feuillu is designed for the ultimate luxury ski holiday in Verbier, with its unbeatable location, world-class skiing and fine dining moments are just steps away.

Features

  • 3 Bedrooms & 3 bathrooms
  • Fireplace
  • Entertainment zone
  • Outdoor hot tub
  • Private ski & boot room
  • Indoor parking spaces
  • Wifi
  • 650m to Ski Lift
  • 250m walk into the centre of Verbier

Services

  • Exclusive use for the duration of your stay.
  • 24-hour driving service on-call throughout your stay.
  • Welcome hamper of holiday essentials to welcome you to your self-catered chalet.
  • Housekeeping 5 days per week
  • Midweek towel change
  • Pre-arrival concierge & In-resort concierge
  • Bamford bath and body products
  • All local taxes

Bedrooms

Bedroom 1
Master double bedroom with private balcony and en-suite bathroom with shower

Bedroom 2
Double/twin bedroom with shared balcony and en-suite shower room

Bedroom 3
Double bedroom with shared balcony and en-suite shower room

Travel

Place Central
2 Minutes walk

Medran Lift
2 Minutes by Chauffeur

Savoleyres Lift
1 Minute by Chauffeur

Floorplan

Location